Post date august 14, 2019; Horton is america's largest new home builder by volume.

Camden Floorplan Lakewood Ranch
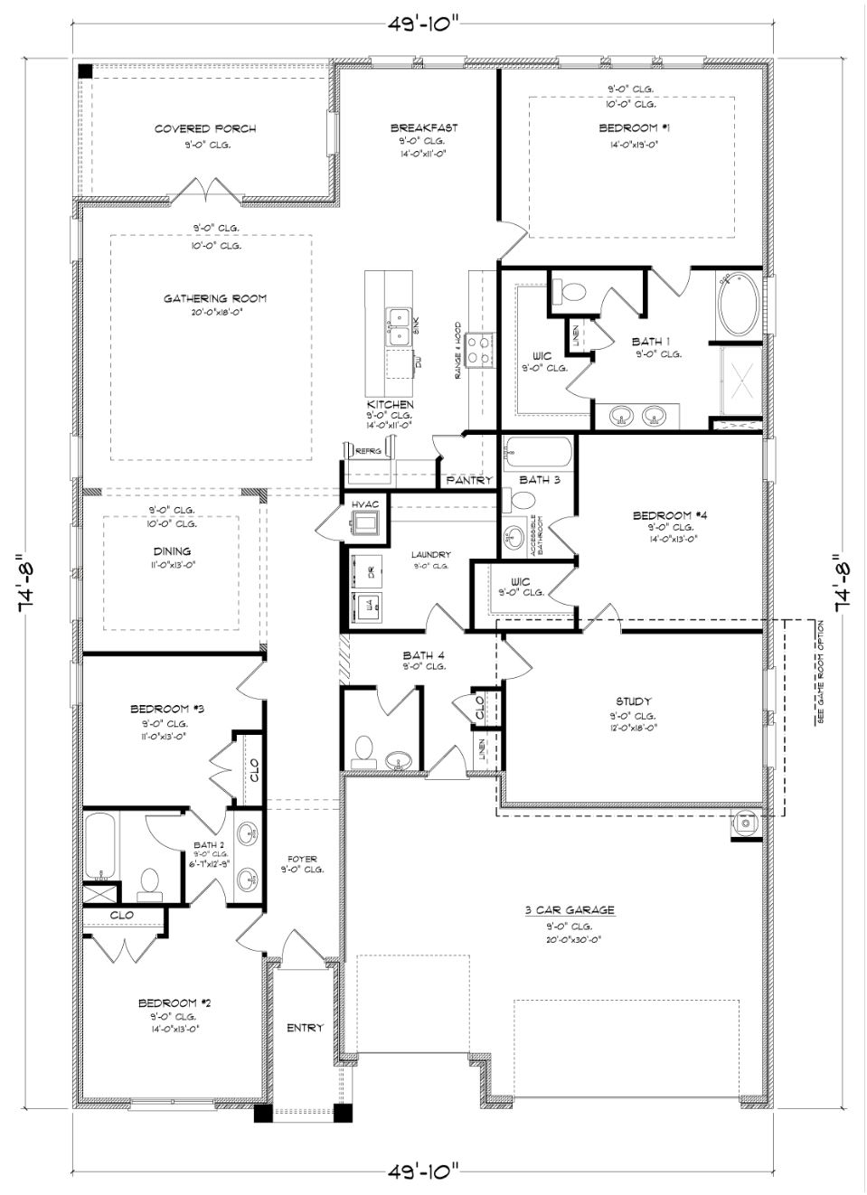
Camden plan is a buildable plan in brookhaven.
Dr horton camden floor plan florida. Dr horton homes floor plans florida. Floor plans floor plans floor plans holden floor plan single family. Our livable floor plans, energy efficient features and robust new home warranty demonstrate our commitment to excellence in construction.
Horton is america's largest new home builder by volume. D r horton new homes under way in fiddler s creek naples. Our livable floor plans, energy efficient features and robust new home warranty demonstrate our commitment to excellence in construction.
New homes in meadow walk davenport fl express. Our livable floor plans, energy efficient features and robust new home warranty demonstrate our commitment to excellence in construction. The asking price for camden plan is.
Floor plans floor plans floor plans see also how to lay underlayment for vinyl plank flooring. Camden floorplan homes from $626,990. We build in the most desired communities throughout panama city and will work with you to find.
The floor plans range in size from 1,798 sq ft to 4,099 sq ft and offer 4 bedroom/2 baths up to 5 bedrooms/4 baths. Camden plan is a buildable plan in mirada. Hayden floor plan d r horton tampa.
Brookhaven is a new community in ocala, fl by d.r. View floor plans, pricing information, property photos, and much more. Uncategorized dr horton floor plans kingsland lively longwood with the d r homes plan, image source:
Camden plan is a buildable plan in brookhaven. Horton is america's largest new home builder by volume. D r horton somerset p q.
Horton is america's largest new home builder by volume. Check out the camden at 24 palmer lane, santa rosa beach, fl 32459. The asking price for camden plan is $385,990.
Our livable floor plans, energy efficient features and robust new home warranty demonstrate our commitment to excellence in construction. Elm model at terramore viera by dr horton new homes in master. Mirada is a new community in san antonio, fl by d.r.
Surrey floor plan d r horton tampa. Dr horton homes floor plans florida. Aberdeen community in jacksonville florida.
Floor plans holden plan single family cape.
New Homes In Brookhaven Ocala Fl Dr Horton
New Homes In Kindred Kissimmee Fl Dr Horton
New Homes In Forest Bay Estates Gulf Breeze Fl Dr Horton
New Homes In Lake Apopka Sound Winter Garden Fl Dr Horton

Camden Floorplan Lakewood Ranch
New Homes In Forest Bay Estates Gulf Breeze Fl Dr Horton
New Homes In Titus Park Panama City Fl Dr Horton
New Homes In Lake Apopka Sound Winter Garden Fl Dr Horton
New Homes In Chadwick Estates Crawfordville Fl Dr Horton

Camden Floorplan Lakewood Ranch
New Homes In Chapel Creek Mobile Al Dr Horton
New Homes In Lake Apopka Sound Winter Garden Fl Dr Horton
New Homes In Forest Bay Estates Gulf Breeze Fl Dr Horton

Camden Floorplan By Dr Horton In Baldwin County
New Homes In The Preserve Odessa Fl Dr Horton
New Homes In Brookhaven Ocala Fl Dr Horton

Camden Model With Inlaw Suite In Clermont Fl Linwood Community – Youtube






